McGraw Hill

Interior Design at HOK

McGraw Hill Education's new headquarters is located along the Chicago River in the heart of the city. The 57,000 square foot space houses 350 employees and was designed to reflect the company's transition from its history in the print world to its future in the digital world.

The client sought an industrial environment that speaks to its Chicago location while maintaining warm, inviting elements throughout. The result is a space that balances the raw character of its urban context with the comfort and energy of a modern workplace.

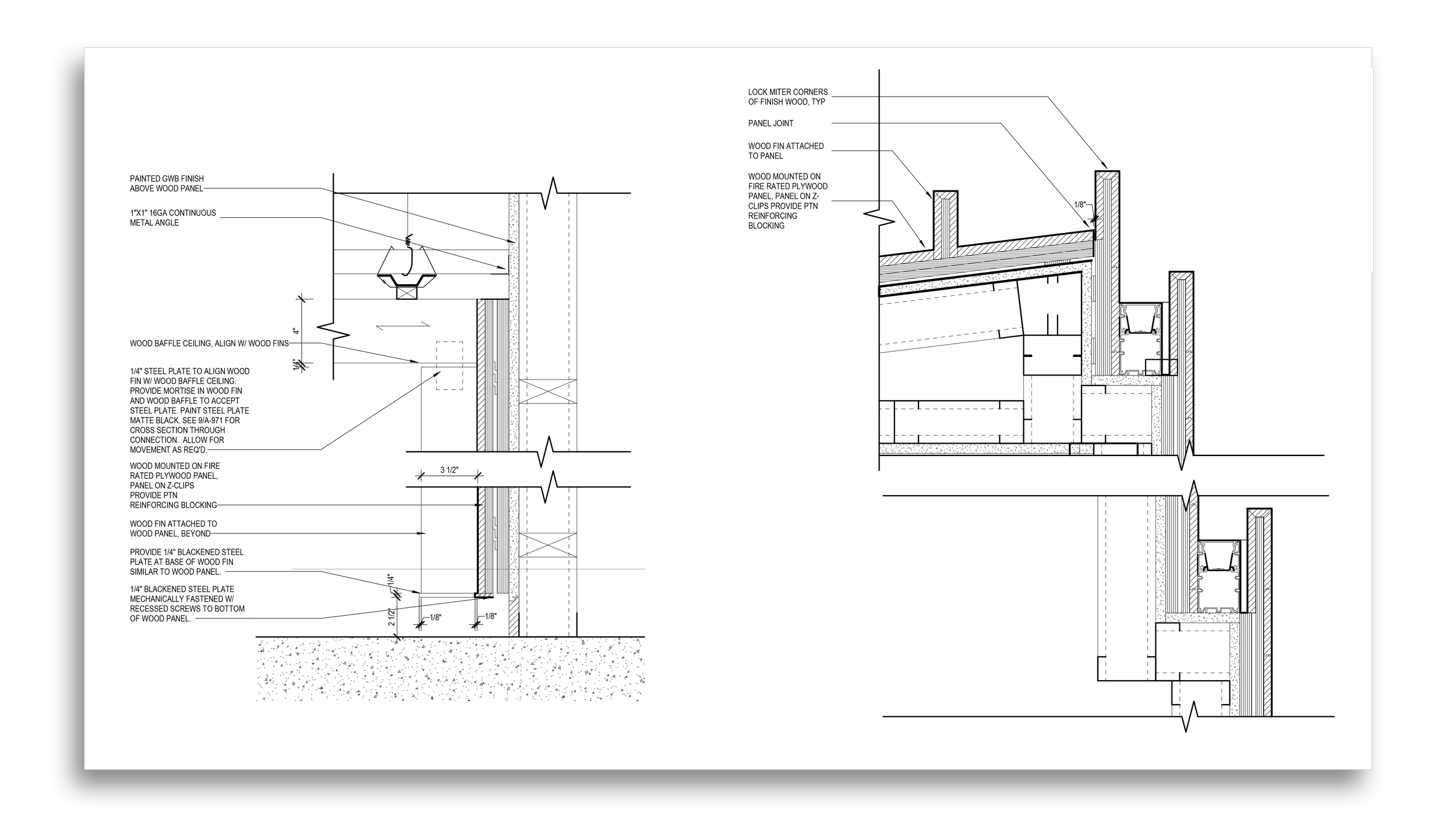
I joined the project in Schematic Design and remained part of the team through Construction Documentation, contributing to space planning, client presentations, furniture and finish selection and specification, and construction document detailing, with my most extensive work focused on the wooden fins, platform, and staircase in the reception area.

Process

Previous
Previous

ATLANTA CAMPUS: Interior Design

Next
Next

BOMBAS: Interior Design